重磅!柳州一中学将搬到此地,招生规模扩大8倍
05-12 09:41
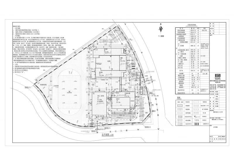
5月11日,柳州市自然资源和规划局对“柳州市第六十六中学项目总平图”方案进行批前公示,这个去年才刚成立、在柳江区北弓学生素质教育基地过渡办学的学校,未来将搬到柳东新区办学。
根据公示,规划建设的柳州市第六十六中学,位于柳州市柳东新区龙江八路北部,江东大道南部。西北侧相邻地块现状为待开发土坡。项目总用地面积约30亩,总建筑面积14293.54平方米。主要建设内容包括教学及教学辅助用房、办公用房、体育馆、报告厅、学生食堂、200米环形塑胶跑道运动场、升旗台、机动车停车场、非机动车停车场、门卫室、大门、连廊、围墙等,同时配套建设供配电、给排水、道路、绿化、消防等设施。

学校规划班级数为16个班,25人为一班,共400名学生,是目前招生规模的8倍。建设一栋教舍综合楼、一栋行政综合楼及一栋综合体育馆,其中体育馆一层为食堂、综合行政楼一层为报告厅。在教舍综合楼西面设操场,教舍综合楼与体育馆之间均设有硬化活动场地,作为人员疏散和应急避难场地。
柳州市第六十六中学于2021年6月6日揭牌成立,由该市教育局和公安局联合创办,是一所公办的专门学校,旨在帮助有严重不良行为的未成年人改正不良行为、回归社会,推进柳州预防未成年人违法犯罪工作,其办学思想是“尊重学生,关爱学生,不放弃一个学生”。
0人点赞
评论